Kingwood Common

Back to Properties

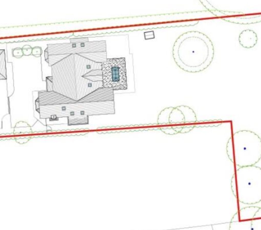
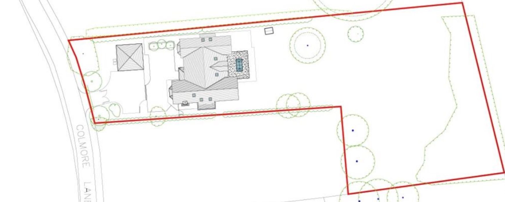
Colmore Lane, Kingwood Common, RG9 5NA

Beautiful Meadowside Building Plot – £1.5m

This exceptional 0.74-acre meadowside plot in Kingwood Common, Oxfordshire offers a rare opportunity to create a substantial family home in a peaceful countryside setting just 5 miles from Henley-on-Thames and 7 miles from Reading. Positioned on a quiet no-through country lane within the Chiltern Hills, the plot benefits from full planning permission (ref. P24/S1830) for a beautifully designed 5,000 sq ft residence with a detached double garage.

Planning & Proposed Home

The approved design includes five bedrooms and five bathrooms, a fabulous kitchen – family room with utility, a spacious living room, a dining/snug, and a study, together with generous gardens and a private driveway. Local amenities in Sonning Common are just 2 miles away, and the area is served by a number of excellent state and independent schools. Mains water and electricity are newly connected to the plot.

Financial Advantages

Purchasing a plot offers notable financial benefits, including significant stamp duty savings — SDLT is £64,500, and zero-rated VAT on new-build homes, making this an appealing and efficient route to building your dream home.

Build With Bentier

This plot is being sold on behalf of a client. If you are interested in commissioning Bentier to build your new home, please contact us for further information.

£1,500,000 – contact us for more details.

The perfect way to plan, design and build your new home.

As well as creating luxury homes for sale, we also offer a service that gives our clients the opportunity to tailor make their dream home using our Bentier Bespoke offering.

Bespoke build